Zentral gelegen & vielseitig nutzbar: Solides Wohn- und Geschäftshaus in Kleve-Kellen!
Eckdaten
Weitere Angaben
Objektbeschreibung
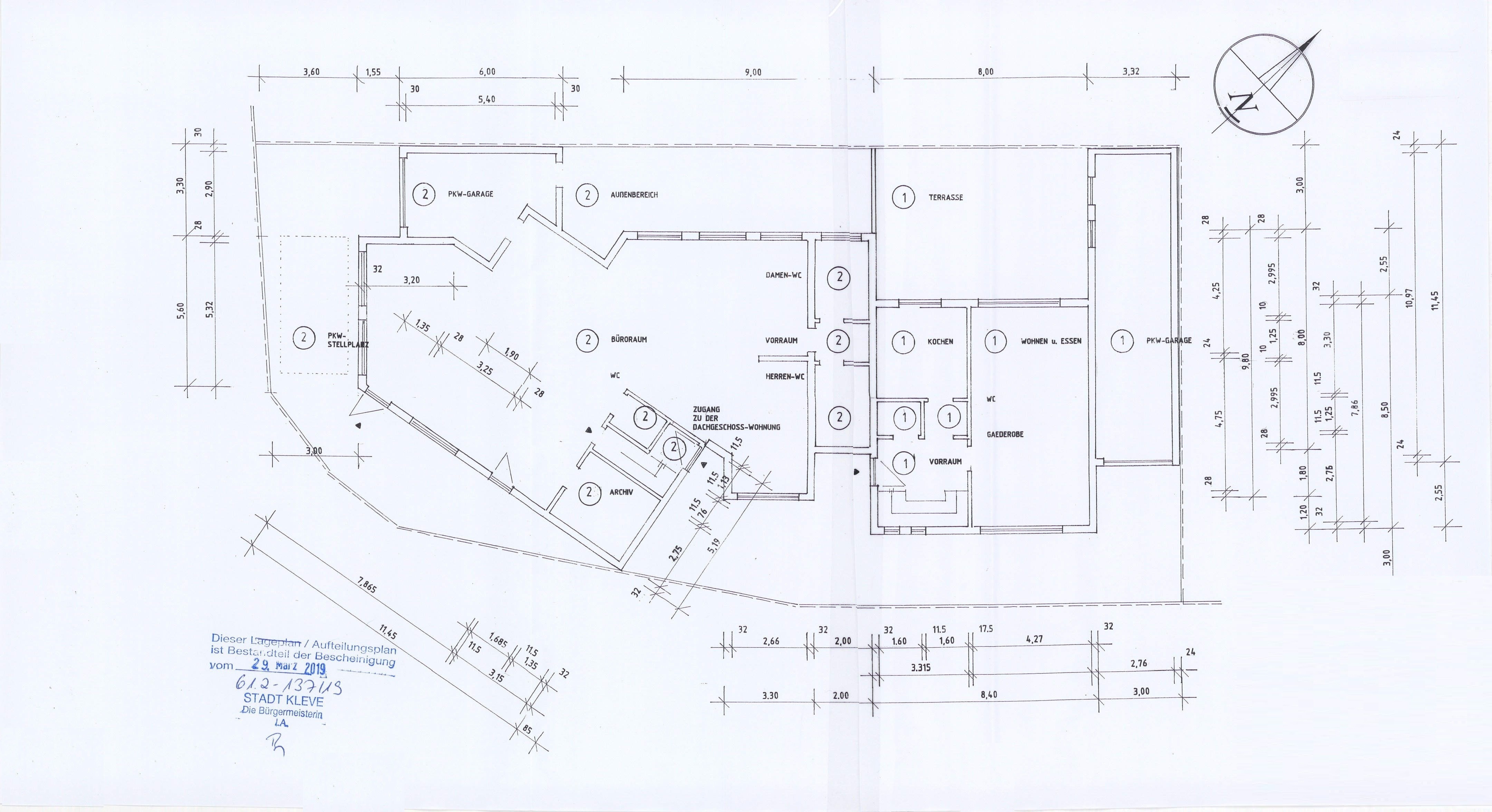
Die Immobilie teilt sich wie folgt auf:
Kellergeschoss
kleiner Kellerraum mit Hausanschlüssen
Erdgeschoss
Eingangsbereich/Zentrale, Wartebereich, großer offener Bürobereich, Büroraum, Hauswirtschaftsraum, Abstellraum mit Heizung, Personaltoilette, Kundentoiletten, Archivraum
Dachgeschoss (Studio)
Flur, Küche, Bad, Hauswirtschaftsraum, Wohnzimmer, Schlafzimmer
Ausstattung
Die hier angebotene Immobilie ist Teil eines ursprünglich im Jahr 1925 erbauten Wohn- und Geschäftshauses. Der charmante Charakter des Gebäudes ist unter anderem am markanten Krüppelwalmdach erkennbar, das noch heute an die ursprüngliche Architektur erinnert. In den 1970er Jahren wurde direkt angrenzend (rechte Seite) ein zweigeschossiges Wohnhaus errichtet – dieses gehört jedoch nicht zum Verkaufsangebot.
Im Laufe der Jahrzehnte wurde das Gebäude vielfältig genutzt. Ab den 1950er Jahren als Gaststätte, seit den 1980er Jahren als beliebtes Imbissrestaurant. Im Jahr 2019 erfolgte die Teilung des Objekts gemäß einer Teilungserklärung in zwei Miteigentumsanteile. Der zum Verkauf stehende Anteil (linke Seite) trägt die Nr. 2 im Aufteilungsplan.
Seit 2020 wurde das komplette Erdgeschoss umfassend durch den jetzigen Eigentümer modernisiert und in ein zeitgemäßes Ladenlokal mit angeschlossenen Büroräumen umgebaut. Die Fensteranlagen (Kunststoff, ca. 90er Jahre) sind in gutem und gepflegtem Zustand.
Beheizt wird das Gebäude über eine Erdgas-Zentralheizung aus dem Jahr 1994, die beide Einheiten (Erd- und Dachgeschoss) zuverlässig mit Wärme versorgt.
Im Dachgeschoss befindet sich eine ca. 45 m² wohnähnlich ausgebautes Studio im Stil der 1980er/1990er Jahre.
Zum Objekt gehören eine Garage und zwei Außenstellplätze direkt vor dem Ladenlokal. Das Geschäft sowie das Studio im Dachgeschoss sind derzeit noch vermietet, werden jedoch mietfrei übergeben.
Sie suchen ein modernisiertes Ladenlokal zur Eigennutzung oder als Kapitalanlage? Dann ist dieses Objekt genau das Richtige für Sie!
Lage
Die Immobilie liegt in einer Seitenstraße im zentralen Teil von Kleve-Kellen, einem gewachsenen Stadtteil mit guter Infrastruktur. Kleve zählt rund 53.500 Einwohner und bietet eine attraktive Mischung aus urbanem Leben und naturnahem Umfeld. In direkter Umgebung befinden sich Einkaufsmöglichkeiten, Gastronomie, Schulen, Ärzte und Bushaltestellen – alles fußläufig erreichbar. Der Bahnhof Kleve ist ca. 2,5 km entfernt, die A57 (Goch) ca. 12 km, die A3 (Emmerich) rund 20 km. Der Flughafen Weeze ist in etwa 30 km schnell erreichbar. Kellen ist geprägt von einer lebendigen Mischung aus Familien, Senioren und Berufstätigen – ideal zum Wohnen und Arbeiten.
Sonstiges
PRO & CONTRA – Kurzübersicht
+++ zentrale Lage in Kleve-Kellen +++
+++ modernisiertes Ladenlokal +++
+++ Platz für 4-6 Arbeitsplätze +++
+++ inkl. Garage +++
+++ inkl. 2 PKW-Stellplätze +++
--- renovierungsbedürftig ---
Gerne stellen wir Ihnen das Wohn- und Geschäftshaus ausführlich vor, oder Sie besuchen uns in unserem Büro. Bei allen Fragen rund um die Immobilie stehen wir Ihnen gerne zur Verfügung.
Wir freuen uns auf Ihren Kontakt! Ihr HIS Team.
Energieausweis
Ansprechpartner
