Gepflegte Haushälfte mit Keller und 2 Garagen im Herzen von Kerken-Nieukerk
Eckdaten
Weitere Angaben
Objektbeschreibung
Die Immobilie teilt sich wie folgt auf:
Kellergeschoss
Flur, Hobbyraum, Abstellraum, Heizungsraum
Erdgeschoss
Diele, Abstellraum, Gästetoilette, Wohn- und Esszimmer mit offenem Küchenbereich
Dachgeschoss
Flur, Kinderzimmer, Schlafzimmer, Badezimmer
Spitzboden
Ausgebauter Hobbyraum
Außenbereich
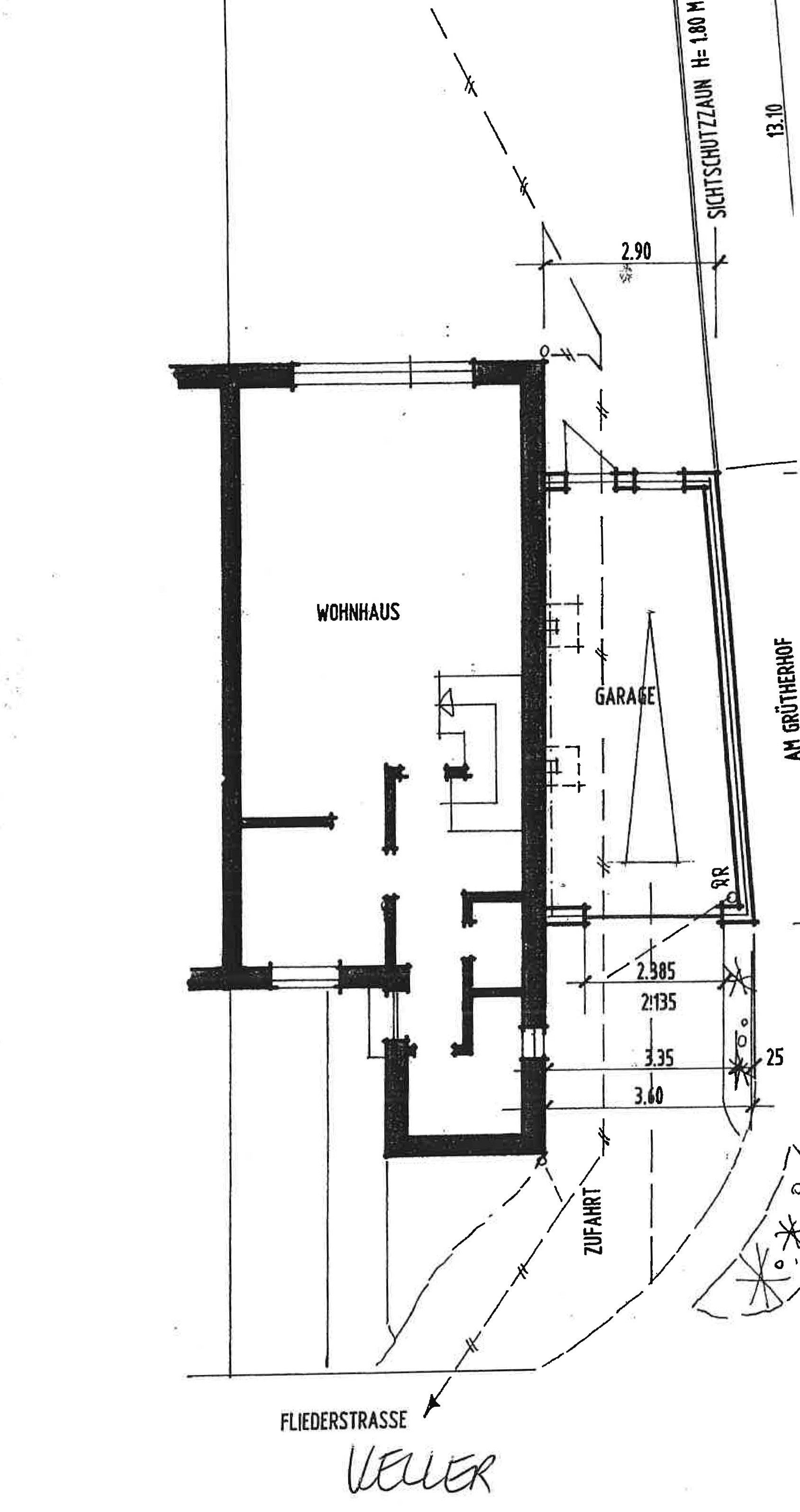
Gepflasterte Zuwegung zum Hauseingang, Auffahrt- und Terrassenbereich, hochwertige Terrassenüberdachung, Kelleraußentreppe, 2 PKW Garagen (22 m² und 18 m²)
Ausstattung
Die hier zum Verkauf stehende, im Jahr 1986 in massiver Bauweise errichtete Doppelhaushälfte präsentiert sich in einem modernen und sehr gepflegten Zustand. Nur wenige Details erinnern heute noch an den Charme der 1980er-Jahre, da das Haus in den vergangenen 25 Jahren fortlaufend modernisiert wurde.
Bereits im Jahr 2002 erfolgte durch die damaligen Eigentümer eine umfangreiche Modernisierung: Das gesamte Erdgeschoss wurde mit neuen Fliesen sowie einem hochwertigen Echtholzparkett im Wohn- und Esszimmerbereich ausgestattet. Zudem wurden die Einbauküche, der Kaminofen sowie sämtliche Innentüren erneuert.
Mit dem Eigentümerwechsel im Jahr 2009 wurde das Haus erneut vollständig renoviert. Dabei erhielten das Dachgeschoss und der Spitzboden neue Bodenbeläge aus Laminat und Kork. Das Badezimmer wurde komplett modernisiert und präsentiert sich heute in einem hellen, zeitgemäßen Stil. Der über eine massive Holztreppe erreichbare Spitzboden dient als zusätzlicher Hobby- oder Arbeitsraum.
Der voll unterkellerte Bereich bietet weiteren Stauraum. Hier befindet sich auch die Zentralheizung mit Warmwasserspeicher aus dem Jahr 1986. Diese ist funktionstüchtig, jedoch technisch überholt und könnte durch eine moderne Brennwerttherme ersetzt werden. Ein wohnlich ausgebauter Hobbyraum im Keller verfügt über einen Heizkörper sowie einen direkten Zugang über eine Kelleraußentreppe in den Garten – ideal als Fitnessraum, Werkstatt oder Büro nutzbar.
Der Garten ist pflegeleicht und gemütlich angelegt. Die Terrasse mit hochwertigen Natursteinplatten und einer überdachten Markise lädt besonders in den Abendstunden zum Verweilen ein.
Besonders hervorzuheben sind die beiden Garagen:
Eine ca. 22 m² große und 8 Meter lange Garage befindet sich seitlich am Haus. Eine weitere, rund 15 m² große Garage liegt im hinteren Teil des Grundstücks und ist bequem über die Seitenstraße zu befahren. Zusätzlich ist hier eine Grundwasserpumpe zur Gartenbewässerung installiert.
Zwei Fahrzeuge unterzubringen? Kein Problem – hier ist ausreichend Platz vorhanden!
Fazit:
Insgesamt präsentiert sich diese Doppelhaushälfte in einem sehr guten und modernisierten Zustand. Wenn Sie ein gepflegtes Zuhause für Ihre Familie suchen, könnte dieses Angebot genau das Richtige für Sie sein!
Lage
Die Immobilie befindet sich in einer ruhigen Wohnlage von Kerken-Nieukerk, einer gepflegten Gemeinde mit rund 13.000 Einwohnern, davon etwa 5.700 im Ortsteil Nieukerk. Das Umfeld des zu verkaufenden Hauses ist geprägt von gepflegten Ein- und Doppelhäusern mit familienfreundlichem Charakter und grünem Umfeld.
Nieukerk bietet eine ausgewogene Mischung aus Familien, Berufspendlern und älteren Bewohnern. Alle Einrichtungen des täglichen Bedarfs wie Supermärkte, Ärzte, Banken, Schulen und Kindergärten sind bequem erreichbar.
Der Bahnhof Nieukerk liegt nur ca. 1,2 km entfernt und bietet direkte Verbindungen Richtung Krefeld, Duisburg und Kleve. Die Autobahn A57 ist in rund 10 Minuten erreichbar. Der Flughafen Weeze liegt ca. 25 km, der Flughafen Düsseldorf etwa 35 km entfernt.
Eine ideale Wohnlage für alle, die ruhiges Wohnen mit guter Anbindung verbinden möchten.
Sonstiges
PRO & CONTRA – Kurzübersicht
+++ gute und ruhige Lage in Nieukerk +++
+++ 2 Schlafzimmer im DG +++
+++ inkl. ausgebauter Spitzboden +++
+++ inkl. Kaminofen +++
+++ inkl. Einbauküche +++
+++ inkl. Überdachter Terrasse +++
+++ inkl. zwei Garagen +++
+++ voll unterkellert +++
--- Ältere Heizungsanlage ---
Gerne stellen wir Ihnen das Haus ausführlich vor, oder Sie besuchen uns in unserem Büro. Bei allen Fragen rund um die Immobilie stehen wir Ihnen gerne zur Verfügung.
Wir freuen uns auf Ihren Kontakt! Ihr HIS Team.
Energieausweis
Ansprechpartner
